| Prijs | € 1.695,- /mnd |
| Type object | Woonhuis, eengezinswoning, tussenwoning |
| Perceeloppervlakte | 154 m² |
| Woonoppervlakte | 97,9 m² |
| Aanvaarding | Per maandag 16 februari 2026 |
| Status | Verhuurd |
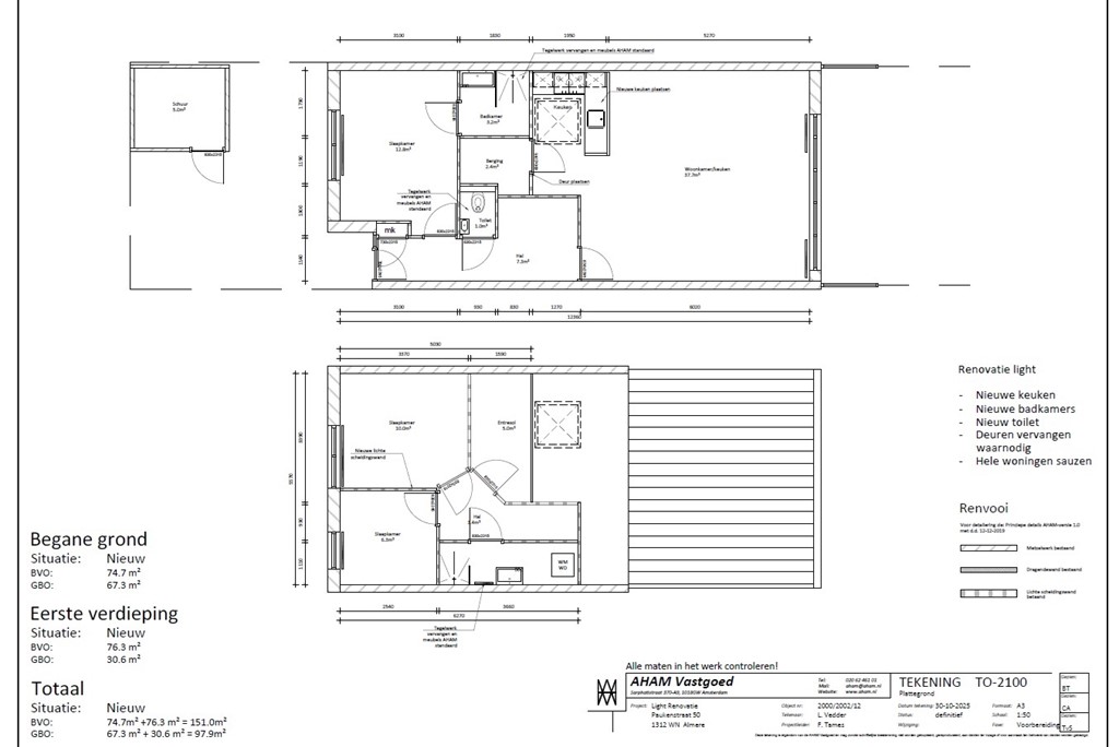
Deze tussenwoning met een lessenaarsdak, vrijstaande stenen berging en een eigen parkeerplaats in de Muziekwijk van Almere-Stad is beschikbaar vanaf 16 februari 2026. De renovatie van deze woning bevindt zich momenteel in de afrondende fase. De woning, zal nadat de renovatie is afgerond, beschikken over twee gerenoveerde badkamers, een vernieuwd toilet op de BG en een nieuwe keuken met inbouwapparatuur geplaatst in een L-opstelling. Op de begane grond bevindt zich een grote slaapkamer met zicht op de straat en op de eerste verdieping bevinden zich de twee andere slaapkamers. De royale woonkamer met schuifpui geeft uitzicht op een fijne en besloten achtertuin. Op de eerste verdieping vind je naast de slaapkamers een ruime entresol (in de presentatie een loggia genoemd) met een dakraam en een tweede badkamer + opstelling voor de wasmachine en de droger. Vrij parkeren is mogelijk eigen terrein voor de woning en in de straat.
Bij binnenkomst tref je de hal aan met meterkast, toegang tot de eerste slaapkamer gelegen aan de voorzijde van de woning met een eigen badkamer voorzien van wastafelmeubel en inloopdouche. In de langgrekte hal tref je de toiletruimte met fontein aan en de open trap naar de eerste verdieping. Als je de tuingerichte woonkamer binnenkomt valt direct de hoogte van het plafond op. Omdat deze woning is voorzien van een lessenaarskap loopt het dak schuin af naar de tuinzijde. Er is een mooie lichtinval door de grote aluminium schuifpui met zicht op de besloten achtertuin. Rceht boven de keuken bevindt zich de entresol met in het dak erboven een fraai dakraam. Een ideale werkplek voor 'thuiswerkers' of in te richten als een studeerkamer. De open keuken (met eigen inpandige opbergruimte) zal worden voorzien van diverse nieuwe inbouwapparatuur
Via de open trap bereik je de overloop. Aan de voorzijde tref je twee fijne slaapkamers aan. De tweede badkamer zal worden voorzien van een inloopdouche, wastafelmeubel (aanname) en de wasmachine/droger aansluiting. Ter hoogte van de slaapkamers tref je de entresol aan (in de presentatie op funda een loggia genoemd). Een heerlijke open ruimte die multifunctioneel kan worden ingezet.
De voorzijde van de woning met eigen vrijstaande stenen berging is geheel bestraat en gelegen op het zuidwesten. Er is meer dan genoeg ruimte om hier ook je auto te parkeren. De achtertuin is gelegen op het noordoosten, is volledig beschut en binnendoor te bereiken via de grote schuifpui in de woonkamer.
Bijzonderheden die betrekking hebben op deze fijne tussenwoning in de Muziekwijk van Almere: - Wordt gerenoveerd en is met ingang van16 februari 2026 te aanvaarden*; - 3 slaapkamers (waarvan één op begane grond en twee op de eerste verdieping); - 2 badkamers (waarvan één op de begane grond annex de de grote slaapkamer en één op de eerste verdieping); - Eén parkeerplaats op eigen terrein voor de woning; - Een vrijstaande stenen berging aan de voorzijde voor de woning; - Ruime speelse entresol (in de presentatie op funda logga genoemd) met dakraam; - Verwarming middels: stadsverwarming; - Energielabel wordt tijdig ter beschikking gesteld; - Bouwjaar 1993; - Servicekosten is een optelsom van € 18,63 bestaande uit: € 10,00/serviceabonnement en € 8,63/servicekosten. Let op de onderstaande punten ter aanvulling op de presentatie: * als de renovatie op tijd is afgerond is deze woning per 16 februari 2026 beschikbaar; * alle foto's zijn ter indicatie en afgeleid van een voorbeeldproject in dezelfde straat bij een vergelijkbare woning; * op datum opname is er nog geen foto van de achtertuin beschikbaar. Interesse in deze woning en voldoe je aan ALLE eisen zoals hieronder genoemd? Maak uw interesse kenbaar via de woningpresentaie op funda. - De huurprijs is exclusief gas, water, licht, telecom en internet; - De waarborgsom is gelijk aan 2 maanden kale huur; - Minimale huurperiode is 12 maanden, daarna is de huur maandelijks opzegbaar (een kortere huurperiode is NIET mogelijk); De huurvoorwaarden: - De minimale bruto inkomensnorm bedraagt ca. 3,5 keer de kale maandhuur wanneer er sprake is van een gezamenlijk bruto maandinkomen, huurt u de woning alleen dan dient het bruto maandinkomen ca. 3 keer de kale maandhuur te bedragen; - Zelfstandigen dienen minimaal 2 jaar bedrijfscijfers te kunnen laten zien; - Onderverhuur is op geen enkele wijze toegestaan; - Verhuurder accepteert geen studenten of "delers" als kandidaten voor de woning; - Het metrage van deze woning is afgeleid van informatie van onze opdrachtgever. Onze uitgangspunten bij verhuur van woningen. Zo lang wij verhuren zijn integriteit en transparantie onze uitgangspunten. Over onze verhuurprocedure blijven wij helder. Iedereen maakt in beginsel een gelijke kans en verderop lees je wat je kunt doen om jouw kansen op de huur van een woning te vergroten. Hoewel de gestelde 'inkomenscriteria' niet in steen staan gebeiteld is het voldoen daaraan wel een ijkpunt. Als iemand daaraan niet voldoet wordt de 'toetsing' en de verhuur een grote uitdaging. We moeten dan niet met elkaar verder willen en dat zeggen we dan ook eerlijk. Voor een uitleg over de wet goed verhuurderschap kun je kijken op de website van onze opdrachtgever AHAM te Amsterdam, www.aham.nl. Hoe vergroot jij jouw kansen? Als je jouw interesse kenbaar maakt via funda, wees dan vanaf dat eerste moment eerlijk. Leg ons uit waarom je wilt huren, wat je plannen zijn en wanneer je beschikbaar bent. Vertel ons meer over jezelf en of je voldoet aan de inkomenscriteria. Kortom, motiveer je aanvraag! Verhuurprocedure. Na jouw interesse kijken we eerst naar jouw aanvraag. Ben jij die geschikte kandidaat dan ontvang je van HUURCHECK een uitnodiging om 'digitaal' een dossier aan te maken. Hier staat exact aangegeven welke informatie nodig is om een compleet en goed beeld te krijgen zodat we over kunnen gaan tot een toetsing. Is jouw toetsing goed, dan stellen wij je voor aan onze opdrachtgever. Als die akkoord is wijzen wij de woning toe of af. Hieronder krijg je een nadere toelichting op de documenten die later - via HUURCHECK - van jou worden gevraagd. • Laatste 3 salarisstroken / inkomstenopgave (ook van partner); • Kopie identiteitsbewijs (ook van partner), zowel van de voor- als achterzijde; • Werkgeversverklaring (ook van partner) - niet ouder dan twee maanden; • Verhuurdersverklaring (mits je een andere huurwoning verlaat) - een recent exemplaar; • Koopwoning verkocht? Stuur de koopovereenkomst mee; • Ben je gepensioneerd dan graag UWV en pensioenstukken overleggen Ben je een zelfstandige? Dan de volgende inkomensgegevens kenbaar maken: 1) De laatste drie recente jaaropgaven (IB-aangiften) van jouw onderneming; 2) Kopie Uittreksel Kamer van Koophandel; 3) Een accountantsverklaring met het oog op de verwachte omzet; 4) Bankafschriften met hierop zichtbaar de bijschrijvingen/inkomen laatste drie maanden; 5) 4 x de bruto maandhuur. Voor alleenstaande/ouderen gelden aangepaste criteria. Zijn er nadere bijzonderheden te melden? 1) Minimale huurperiode van 1 jaar; 2) De woning is te aanvaarden vanaf 16 februari 2026* 3) Er is sprake van een waarborgsom welke niet rentedragend is en later wordt geretourneerd; 4) Bij de aanvang verhuur garanderen wij geen afwezigheid van gebreken; 5) Bij aanvang verhuur aanvaard jij de woning zoals die is en onderhoud jij deze zeer nauwkeurig; 6) Er wordt een (nieuw) energielabel beschikbaar gesteld; 7) De foto's in de presentatie geven een indruk van een soortgelijke renovatie weer; 8) De servicekosten bedragen ca. € 18,00 per maand; Voorbehouden op jouw huuraanvraag. - Ongemotiveerde aanvragen geven van jou geen goede indruk; - Onvolledige dossiers zijn heel lastig te beoordelen; - Delers of studenten als kandidaten mogen wij niet accepteren; - Er is beperkte informatie beschikbaar over isolatievormen. Tuinieren. Je mag naar eigen inzicht de achtertuin inrichten. Als je bij de voorinspectie door de inspecteur bent gewezen op tuinonderhoud en als bij vertrek/de eindoplevering blijkt dat jij jouw achtertuin niet hebt onderhouden (naar inzicht van de inspecteur) worden de kosten voor fatsoenering onherroepelijk van jouw borg afgetrokken. Dit geldt ook voor jouw voortuin en jouw patio. Jouw patio is vrij van gras, mos, onkruid en jouw houten gevelbetimmering is gereinigd en wit. Onderhoud. Als je in één van deze huurwoningen woont, onderhoud jij deze alsof je de trotse eigenaar bent. Dat houdt in dat je er zorgvuldig mee omgaat. Wij accepteren géén enkele beschadiging, ook niet aan apparatuur die niet werkt of stuk is, een huis dat ronduit smerig is of ramen die niet worden gezeemd enzovoorts. Constateert de inspecteur bij de voorinspectie 'zaken' dan heb je tot aan de eindinspectie de tijd om die 'zaken' die hem/haar zijn opgevallen op te pakken en te herstellen. Blijkt bij de eindinspectie dat je 'aanwijzingen' niet hebt opgevolgd dan worden kosten voor fatsoenering van de woning onherroepelijk van jouw borg afgetrokken. Kleine gebrekenregeling. Ontstaan er door jouw bewoning 'gebreken' aan de woning dan wijzen wij jou op de kleine gebrekenregeling. Disclaimer. Alhoewel zorgvuldig samengesteld, kunnen er aan deze tekst geen rechten worden ontleend. Wij staan dan ook niet in voor de juistheid en volledigheid van de getoonde gegevens. De woning is ingemeten volgens de werkwijze van AHAM. Toch kunnen er altijd verschillen ontstaan tussen de opgegeven maten en de werkelijkheid. Indien de maten voor u belangrijk zijn nodigen wij u van harte uit de maten op voorhand op juistheid te controleren. Foto's zijn ter indicatie en een energielabel is beschikbaar bij oplevering.
| Referentienummer | 00166 |
| Huurprijs | € 1.695,- per maand |
| Borg | € 3.390,- |
| Servicekosten | € 18,63 per maand |
| Inrichting | Niet gestoffeerd |
| Inrichting | Niet gemeubileerd |
| Status | Verhuurd |
| Aanvaarding | Per maandag 16 februari 2026 |
| Aangeboden sinds | Vrijdag 30 januari 2026 |
| Laatste wijziging | Maandag 2 maart 2026 |
| Type object | Woonhuis, eengezinswoning, tussenwoning |
| Soort bouw | Bestaande bouw |
| Toegankelijkheid | Mindervaliden Senioren |
| Bouwperiode | 1993 |
| Dakbedekking | Bitumen Dakpannen |
| Type dak | Lessenaarsdak |
| Keurmerken | Energie prestatie advies |
| Isolatievormen | Dakisolatie Dubbel glas Muurisolatie Spouwmuren Vloerisolatie |
| Perceeloppervlakte | 154 m² |
| Woonoppervlakte | 97,9 m² |
| Inhoud | 400 m³ |
| Oppervlakte overige inpandige ruimten | 2,4 m² |
| Oppervlakte externe bergruimte | 5 m² |
| Aantal bouwlagen | 2 |
| Aantal kamers | 4 (waarvan 3 slaapkamers) |
| Aantal badkamers | 2 (en 1 apart toilet) |
| Ligging | Aan rustige weg Dichtbij openbaar vervoer In woonwijk Nabij school Nabij snelweg Nabij winkelcentrum |
| Type | Achtertuin |
| Hoofdtuin | Ja |
| Oriëntering | Noorden |
| Staat | Normaal |
| Energielabel | A |
| Aantal parkeerplaatsen | 1 |
| Warm water | Stadsverwarming |
| Verwarmingssysteem | Stadsverwarming |
| Ventilatie methode | Mechanische ventilatie Natuurlijke ventilatie |
| Badkamervoorzieningen Badkamer 1 | Inloopdouche Wastafelmeubel |
| Badkamervoorzieningen Badkamer 2 | Douche Wasmachineaansluiting Wastafelmeubel |
| Heeft kabel-tv | Ja |
| Glasvezelaansluiting aanwezig | Ja |
| Tuin aanwezig | Ja |
| Telefoonaansluiting aanwezig | Ja |
| Beschikt over een internetverbinding | Ja |
| Heeft schuur/berging | Ja |
| Heeft een dakraam | Ja |
| Heeft een schuifpui | Ja |
| Heeft ventilatie | Ja |